Negozio in vendita

Parma, Viale Antonio Fratti
€ 180.000
1 locale 1 locale
197 Mq 197 Mq
1 bagno 1 bagno

Negozio in vendita

Parma, Viale Antonio Fratti

Descrizione annuncio

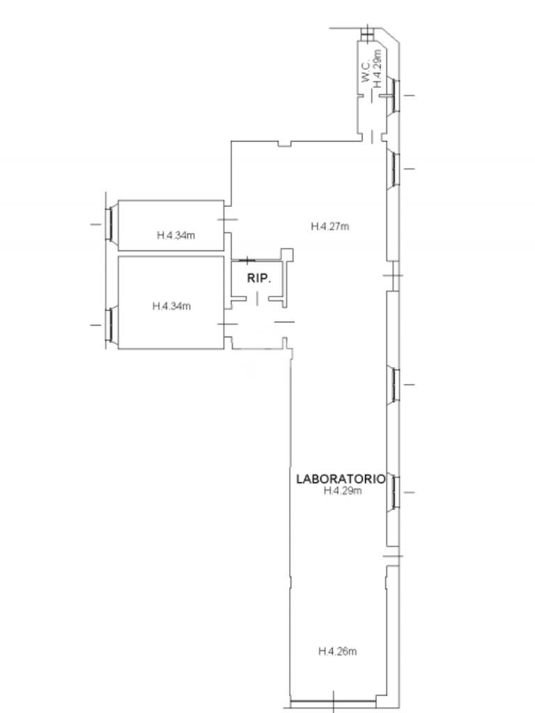
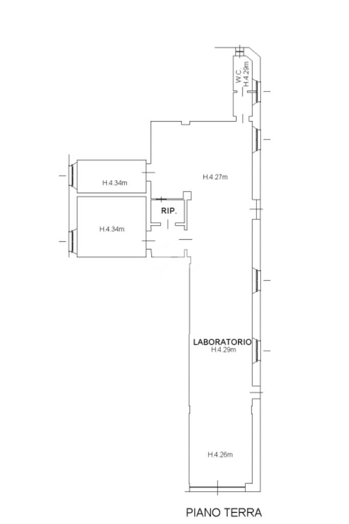
LABORATORIO IN VENDITA – VIALE FRATTI (PARMA)

In posizione strategica e di forte passaggio, su Viale Fratti, una delle arterie più importanti e visibili di Parma, proponiamo laboratorio in vendita con vetrine fronte strada.

L’immobile, di circa 200 mq, è da ristrutturare e attualmente utilizzato come centro ricambi.
Si compone di:

Ampio open space facilmente modulabile

Locale toilettes finestrato

Area esterna privata, ideale per carico/scarico o utilizzo esclusivo

Dalle foto il locale risulta attualmente occupato da scaffalature e prodotti, che verranno completamente rimossi al momento della vendita, lasciando l’immobile libero e disponibile per nuove personalizzazioni.

Ottima visibilità commerciale grazie alle vetrine fronte strada e alla posizione su una via di intenso transito veicolare e pedonale.
Soluzione ideale per laboratori, showroom, attività artigianali o commerciali che necessitano di spazi ampi e di grande esposizione.

Posizione di assoluto interesse
Ampia metratura
Grande visibilità e facile accesso

Per informazioni e visite, contattare.

Mostra tutto

Nelle vicinanze

Trasporto pubblico Trasporto pubblico
stazione di Parma
stazione di Parma
270 m
Strada Garibaldi
Strada Garibaldi
90 m
Viale Mentana Barriera Garibaldi
Viale Mentana Barriera Garibaldi
100 m
Ricariche auto elettriche Ricariche auto elettriche
Novotel Parma Centro
80 m
Eneldrive Stazione FS
170 m
IrenGo European Food Safety Authority
670 m
Eneldrive Della Steccata
680 m
LIDL Via Venezia Parma
760 m
Scuole Scuole
Wall street english institute
320 m
Università degli Studi di Parma
590 m
Scuola di musica
750 m
Istituto Salesiano San Benedetto
820 m
Liceo delle Scienze Umane "A. San Vitale"
960 m
Farmacia Farmacia
Farmacia Bottego
90 m
Mantovani
280 m
Farmacia Mentana
440 m
San Paolo
500 m
San Martino
530 m
Ospedali Ospedali
Casa della Salute Parma Centro
360 m
Gemini
1,1 Km
Ausl
1,1 Km
Casa della Salute Pintor-Molinetto
1,6 Km
Pronto Soccorso Ostetrico
1,8 Km
Supermercati Supermercati
Punto Simply
300 m
Dìmeglio
490 m
Penny Market
710 m
Sapori & Dintorni Conad
730 m
Equ Discount
750 m
Negozi Negozi
Negozi
110 m
Mussi
170 m
Mini Mix
200 m
Setti
200 m
Bon. Cor.
210 m
Bar Bar
Bar
330 m
francibar
490 m
Ombra di luna
540 m
Proseccheria
760 m
San Leonardo
850 m
Ristoranti Ristoranti
Ritual
50 m
"Nuvola"
100 m
Ristorante Porta San Barnaba
100 m
"Perlage"
120 m
Restaurant Maxim's
130 m
Mostra tutto

Caratteristiche

Rif.:
61154417
Piano:
Terra di 5
Totale piani:
5
Condizionamento:
Assente
Ascensore:
No
Riscaldamento:
Assente
Mostra tutto
Prezzo Prezzo
€ 180.000
Rata mutuo Rata mutuo
€ 849 / mese
Spese annue Spese annue
€ 0
Proponi il tuo prezzoProponi il tuo prezzo

Altre caratteristiche

Descrizione dei locali
Bagno Con Finestra

Classe Energetica

G
G
G
G
G
G
G
G
G
EP globale non rinnovabile:
298.98 kW h/m² anno
EP globale rinnovabile:
298.98 kW h/m² anno
EP invernale del fabbricato:
EP estiva del fabbricato:
Anno di costruzione:
1950
Riscaldamento:
Assente

Ti interessa visionare l'immobile?

Fissa un appuntamento  Fissa un appuntamento

Richiedi informazioni

Clicca su Leggi per aprire l'informativa
* Questi campi sono obbligatori

Calcola il tuo mutuo

Semplice e senza impegno
Anticipo

( % )
Mutuo

( % )

pochi semplici passi

inserisci i tuoi dati
Questionario completato
Grazie per aver richiesto un appuntamento senza impegno con un nostro Consulente del Credito e Assicurativo.

Hai inserito correttamente tutti i dati necessari e a breve riceverai una e-mail con un link da convalidare per inviare i tuoi dati.
Affiliato
Secondo Tempo Srl
Via Venezia, 1 43100 Parma (PR)

Il nostro staff


  • Marco Ferrari
    Affiliato

  • Claudia Bonardi
    Coordinatrice
Via Venezia, 1 43100 Parma (PR)
Zona: San Leonardo-Crocetta-Paradigna-SPIP-San Polo-Colorno-Sorbolo-San Secondo
Mostra su mappa
Affiliato
Secondo Tempo Srl
Via Venezia, 1 43100 Parma (PR)

2026 Tecnocasa Franchising S.p.A. - P. IVA 08365160152 - Via Monte Bianco 60/A 20089 Rozzano (MI). Ogni agenzia ha un proprio titolare ed è autonoma. Privacy policy | Policy utilizzo | Cookie policy