Ufficio in vendita

Parma, Via Cerati
Informazioni in agenzia
20 locali 20 locali
500 Mq 500 Mq
10 bagni 10 bagni

Ufficio in vendita

Parma, Via Cerati

Descrizione annuncio

Uffici Direzionali di Prestigio – Vendita e Affitto

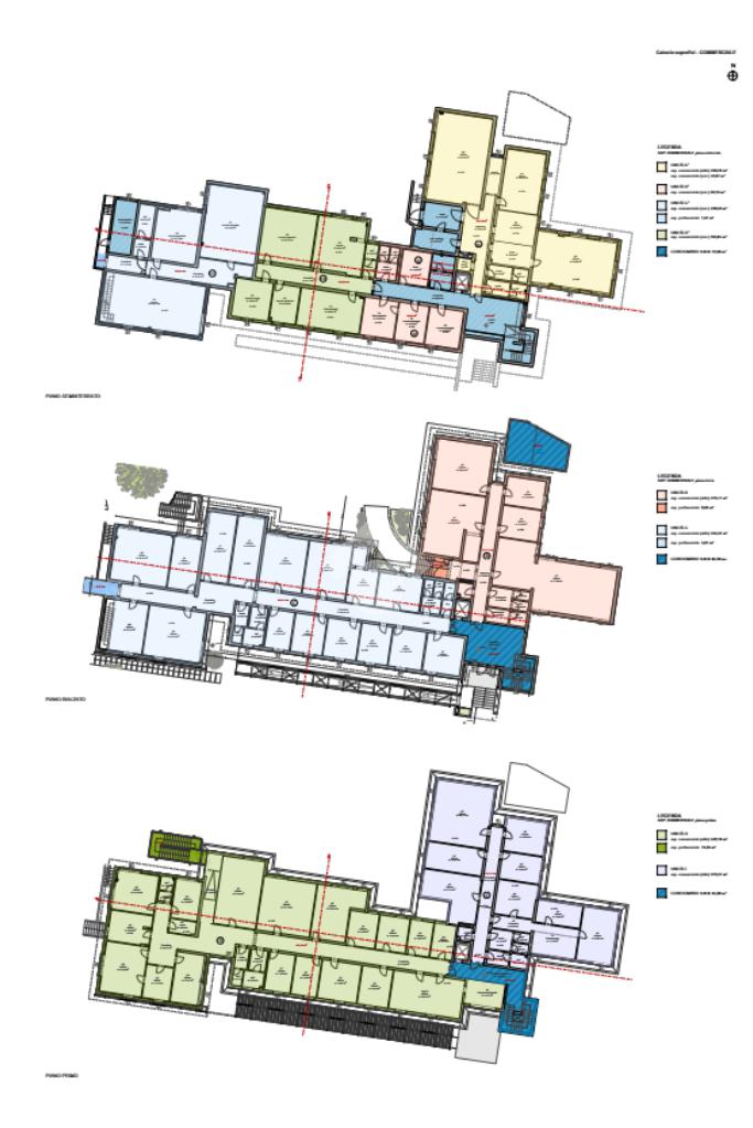
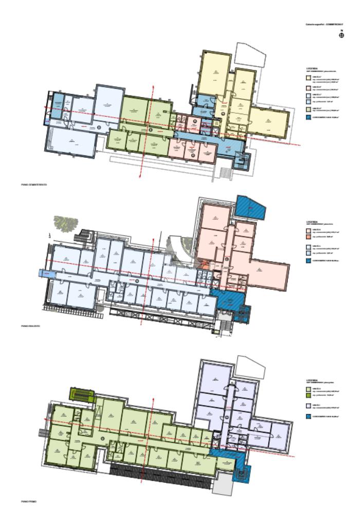
All’interno di una struttura direzionale di alto pregio, recentemente ristrutturata a nuovo sia internamente che esternamente, sono attualmente disponibili 4 soluzioni ufficio, mentre una unità è già stata affittata.

Le superfici disponibili variano da 260 mq a 550 mq. Le unità sono proposte sia in vendita che in affitto, offrendo massima flessibilità.

Completano gli uffici dei locali magazzino posti al piano seminterrato, ideali come supporto operativo agli uffici.

Completano la proprietà numerosi parcheggi privati interni, a servizio di dipendenti e clientela venduti o affittati separatamente.

Per maggiori informazioni o per prenotare una visita, contattare:

Alessandro – 380 753 6651

Mostra tutto

Nelle vicinanze

Trasporto pubblico Trasporto pubblico
stazione di Parma
stazione di Parma
1,6 Km
Cornocchio
Cornocchio
560 m
Trasporto pubblico
930 m
Ricariche auto elettriche Ricariche auto elettriche
Concessionario Nissan Auto & Auto Parma
920 m
IrenGo Dipartimento di Economia
1,1 Km
IrenGo European Food Safety Authority
1,1 Km
Eneldrive Ospedale Maggiore
1,1 Km
Eneldrive Vittoria
1,4 Km
Scuole Scuole
Istituto Tecnico Agrario "Fabio Bocchialini"
740 m
Scuole
780 m
Istituto Tecnico Agrario & Economico
780 m
Istituto Tecnico Economico G. B. Bodoni
810 m
Università degli Studi di Parma - Dipartimento di Scienze Medico-Veterinarie
870 m
Farmacia Farmacia
Parafarmacia Oltre Torrente Dott. Martinelli
550 m
Farmacia SS Annunziata
880 m
Farmacia Crocetta
1,3 Km
Parafarmacia
1,5 Km
Farmacia Bixio
1,5 Km
Ospedali Ospedali
Pronto Soccorso Ostetrico
760 m
Gemini
760 m
Pronto Soccorso Pediatrico
820 m
Ausl
920 m
Ospedale Maggiore Parma
1,2 Km
Supermercati Supermercati
In's Mercato
420 m
Biopiu
640 m
Coop
720 m
Sigma
760 m
Conad
810 m
Negozi Negozi
Humus
630 m
Pampling
1,0 Km
Phebel
1,0 Km
Eredi Dalcò
1,1 Km
Sawadee
1,1 Km
Bar Bar
Circolo App Colombofili
410 m
pasticceria
770 m
Bar
1,0 Km
Champs Elisee
1,2 Km
Surfer's Den
1,3 Km
Ristoranti Ristoranti
Felsinea
450 m
Ristorante Casa Romaneasca
500 m
Ristorante Cocchi
730 m
Ristorante sapori del mondo
760 m
Ristoranti
810 m
Mostra tutto

Caratteristiche

Rif.:
61116925
Piano:
Su più livelli di 3 con ascensore
Totale piani:
3
Posti auto:
19
Condizionamento:
Centralizzato
Ascensore:
Mostra tutto
Prezzo Prezzo
Informazioni in agenzia
Spese annue Spese annue
€ 1
Proponi il tuo prezzoProponi il tuo prezzo

Altre caratteristiche

Descrizione dei locali
Bagno Con Finestra

Classe Energetica

Questo immobile è esente da classe energetica
Anno di costruzione:
1980
Riscaldamento:
Centralizzato
Tipo impianto:
Ad aria
Tipo alimentazione:
Altro

Ti interessa visionare l'immobile?

Fissa un appuntamento  Fissa un appuntamento

Richiedi informazioni

* Questi campi sono obbligatori
Affiliato
Secondo Tempo Srl
Via Venezia, 1 43100 Parma (PR)

Il nostro staff


  • Marco Ferrari
    Affiliato

  • Claudia Bonardi
    Coordinatrice

  • Alessandro Mallia
    Collaboratore

  • Vincenzo Samuele Vicedomini
    Collaboratore
Via Venezia, 1 43100 Parma (PR)
Zona: San Leonardo-Crocetta-Paradigna-SPIP-San Polo-Colorno-Sorbolo-San Secondo
Mostra su mappa
Affiliato
Secondo Tempo Srl
Via Venezia, 1 43100 Parma (PR)

2025 Tecnocasa Franchising S.p.A. - P. IVA 08365160152 - Via Monte Bianco 60/A 20089 Rozzano (MI). Ogni agenzia ha un proprio titolare ed è autonoma. Privacy policy | Policy utilizzo | Cookie policy