Ufficio in affitto

Parma, Via Antonio Cerati - Crocetta
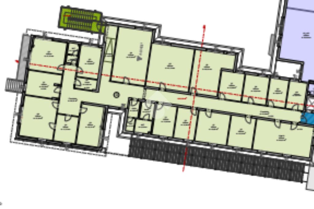
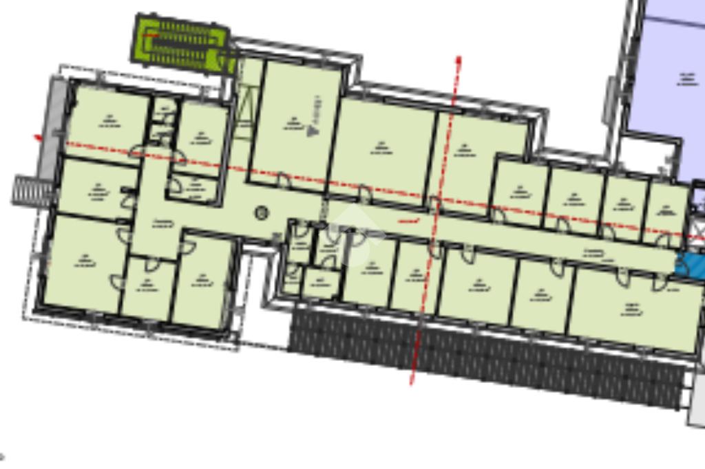
18 locali 18 locali
751 Mq 751 Mq
1 bagno 1 bagno

Ufficio in affitto

Parma, Via Antonio Cerati - Crocetta

Descrizione annuncio

UFFICIO IN AFFITTO – ZONA CROCETTA – 2° PIANO

In zona Crocetta, area altamente servita e ben collegata, proponiamo in affitto ampio ufficio di circa 751 mq, completamente ristrutturato a nuovo, situato al 2° piano.

L’immobile è così composto:

Superficie principale ad uso uffici al 2° piano

Circa 180 mq di locali accessori al piano seminterrato, ideali come sale riunioni, archivi o zone ristoro

Gli spazi sono ben distribuiti e comprendono circa 18 locali, un lungo corridoio centrale e numerose stanze ad uso ufficio, adatte a strutture aziendali organizzate, studi professionali o coworking.

Locali moderni e funzionali
Ristrutturazione recente
Ottima distribuzione degli spazi
Zona strategica e ricca di servizi
Parcheggi a pagamento disponibili, prezzo da concordare

Soluzione ideale per chi cerca grandi superfici pronte all’uso in una delle zone più richieste della città.

Mostra tutto

Nelle vicinanze

Trasporto pubblico Trasporto pubblico
stazione di Parma
stazione di Parma
1,8 Km
Trasporto pubblico
740 m
Cornocchio
Cornocchio
810 m
Ricariche auto elettriche Ricariche auto elettriche
Concessionario Nissan Auto & Auto Parma
660 m
Eneldrive Ospedale Maggiore
960 m
IrenGo Dipartimento di Economia
1,1 Km
Eneldrive Vittoria
1,3 Km
IrenGo European Food Safety Authority
1,3 Km
Scuole Scuole
Istituto Tecnico Agrario "Fabio Bocchialini"
830 m
Scuole
880 m
Istituto Tecnico Agrario & Economico
880 m
Istituto Tecnico Economico G. B. Bodoni
920 m
Istituto Comprensivo Statale G. Ferrari
1,0 Km
Farmacia Farmacia
Parafarmacia Oltre Torrente Dott. Martinelli
380 m
Farmacia SS Annunziata
840 m
Farmacia Crocetta
1,1 Km
Farmacia Volturno
1,6 Km
Farmacia Bixio
1,6 Km
Ospedali Ospedali
Pronto Soccorso Ostetrico
620 m
Pronto Soccorso Pediatrico
670 m
Gemini
900 m
Ospedale Maggiore Parma
1,1 Km
Punto Bianco
1,1 Km
Supermercati Supermercati
Coop
530 m
In's Mercato
670 m
Sigma
690 m
Biopiu
890 m
Conad
960 m
Negozi Negozi
Humus
480 m
Pampling
1,0 Km
Phebel
1,0 Km
Eredi Dalcò
1,0 Km
Sawadee
1,1 Km
Bar Bar
Circolo App Colombofili
470 m
Bar
780 m
pasticceria
900 m
Melissa
1,2 Km
Champs Elisee
1,2 Km
Ristoranti Ristoranti
Ristorante sapori del mondo
500 m
Ristorante Cocchi
570 m
Ristorante Casa Romaneasca
620 m
Felsinea
710 m
Ristoranti
750 m
Mostra tutto

Caratteristiche

Rif.:
61169373
Piano:
2 di 3 con ascensore (Piano alto)
Balconi:
1
Condizionamento:
Centralizzato
Ascensore:
Riscaldamento:
Centralizzato
Mostra tutto
Prezzo Prezzo
€ 8.128 / mese
Spese annue Spese annue
€ 1
Anche in vendita a

Altre caratteristiche

Descrizione dei locali
Bagno Con Finestra

Classe Energetica

Questo immobile è esente da classe energetica
Anno di costruzione:
1980
Riscaldamento:
Centralizzato
Tipo impianto:
A radiatori
Tipo alimentazione:
Altro

Ti interessa visionare l'immobile?

Fissa un appuntamento  Fissa un appuntamento

Richiedi informazioni

Clicca su Leggi per aprire l'informativa
* Questi campi sono obbligatori
Affiliato
Secondo Tempo Srl
Via Venezia, 1 43100 Parma (PR)

Il nostro staff


  • Marco Ferrari
    Affiliato

  • Claudia Bonardi
    Coordinatrice
Via Venezia, 1 43100 Parma (PR)
Zona: San Leonardo-Crocetta-Paradigna-SPIP-San Polo-Colorno-Sorbolo-San Secondo
Mostra su mappa
Affiliato
Secondo Tempo Srl
Via Venezia, 1 43100 Parma (PR)

2026 Tecnocasa Franchising S.p.A. - P. IVA 08365160152 - Via Monte Bianco 60/A 20089 Rozzano (MI). Ogni agenzia ha un proprio titolare ed è autonoma. Privacy policy | Policy utilizzo | Cookie policy