Ufficio in vendita

Parma, Via Antonio Cerati - Crocetta
18 locali 18 locali
751 Mq 751 Mq
1 bagno 1 bagno

Ufficio in vendita

Parma, Via Antonio Cerati - Crocetta

Descrizione annuncio

UFFICIO IN VENDITA – ZONA CROCETTA – 2° PIANO

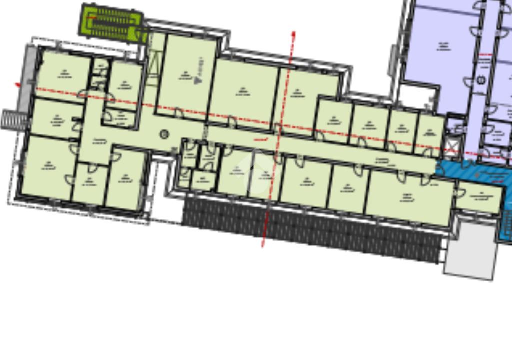
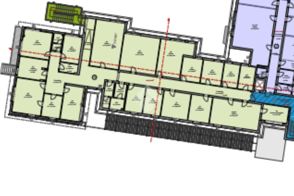
In zona Crocetta, proponiamo in vendita prestigioso ufficio di circa 751 mq, situato al 2° piano di un contesto direzionale ben curato e servito.

L’immobile, completamente ristrutturato a nuovo, è composto da:

Ampia superficie ad uso ufficio al 2° piano

180 mq di locali accessori al piano seminterrato, ideali per sale riunioni, archivi e aree break

La distribuzione interna prevede circa 18 locali, un ampio corridoio e diverse stanze che garantiscono massima flessibilità d’uso.

Immobile di rappresentanza
Spazi versatili e ben organizzati
Ottimo investimento immobiliare
Parcheggi a pagamento disponibili, con prezzo da concordare

Soluzione ideale per aziende, studi professionali o investitori alla ricerca di un ufficio ampio e moderno in una delle zone più apprezzate della città.

Mostra tutto

Nelle vicinanze

Trasporto pubblico Trasporto pubblico
stazione di Parma
stazione di Parma
1,8 Km
Trasporto pubblico
740 m
Cornocchio
Cornocchio
810 m
Ricariche auto elettriche Ricariche auto elettriche
Concessionario Nissan Auto & Auto Parma
660 m
Eneldrive Ospedale Maggiore
960 m
IrenGo Dipartimento di Economia
1,1 Km
Eneldrive Vittoria
1,3 Km
IrenGo European Food Safety Authority
1,3 Km
Scuole Scuole
Istituto Tecnico Agrario "Fabio Bocchialini"
830 m
Scuole
880 m
Istituto Tecnico Agrario & Economico
880 m
Istituto Tecnico Economico G. B. Bodoni
920 m
Istituto Comprensivo Statale G. Ferrari
1,0 Km
Farmacia Farmacia
Parafarmacia Oltre Torrente Dott. Martinelli
380 m
Farmacia SS Annunziata
840 m
Farmacia Crocetta
1,1 Km
Farmacia Volturno
1,6 Km
Farmacia Bixio
1,6 Km
Ospedali Ospedali
Pronto Soccorso Ostetrico
620 m
Pronto Soccorso Pediatrico
670 m
Gemini
900 m
Ospedale Maggiore Parma
1,1 Km
Punto Bianco
1,1 Km
Supermercati Supermercati
Coop
530 m
In's Mercato
670 m
Sigma
690 m
Biopiu
890 m
Conad
960 m
Negozi Negozi
Humus
480 m
Pampling
1,0 Km
Phebel
1,0 Km
Eredi Dalcò
1,0 Km
Sawadee
1,1 Km
Bar Bar
Circolo App Colombofili
470 m
Bar
780 m
pasticceria
900 m
Melissa
1,2 Km
Champs Elisee
1,2 Km
Ristoranti Ristoranti
Ristorante sapori del mondo
500 m
Ristorante Cocchi
570 m
Ristorante Casa Romaneasca
620 m
Felsinea
710 m
Ristoranti
750 m
Mostra tutto

Caratteristiche

Rif.:
61169371
Piano:
2 di 3 con ascensore (Piano alto)
Condizionamento:
Centralizzato
Ascensore:
Riscaldamento:
Centralizzato
Giardino:
Condominiale
Mostra tutto
Prezzo Prezzo
€ 1.194.000
Rata mutuo Rata mutuo
€ 5.629 / mese
Spese annue Spese annue
€ 1
Anche in affitto a
Proponi il tuo prezzoProponi il tuo prezzo

Altre caratteristiche

Descrizione dei locali
Bagno Con Finestra

Classe Energetica

Questo immobile è esente da classe energetica
Anno di costruzione:
1980
Riscaldamento:
Centralizzato
Tipo impianto:
Ad aria
Tipo alimentazione:
Altro

Ti interessa visionare l'immobile?

Fissa un appuntamento  Fissa un appuntamento

Richiedi informazioni

Clicca su Leggi per aprire l'informativa
* Questi campi sono obbligatori

Calcola il tuo mutuo

Semplice e senza impegno
Anticipo

( % )
Mutuo

( % )

pochi semplici passi

inserisci i tuoi dati
Questionario completato
Grazie per aver richiesto un appuntamento senza impegno con un nostro Consulente del Credito e Assicurativo.

Hai inserito correttamente tutti i dati necessari e a breve riceverai una e-mail con un link da convalidare per inviare i tuoi dati.
Affiliato
Secondo Tempo Srl
Via Venezia, 1 43100 Parma (PR)

Il nostro staff


  • Marco Ferrari
    Affiliato

  • Claudia Bonardi
    Coordinatrice
Via Venezia, 1 43100 Parma (PR)
Zona: San Leonardo-Crocetta-Paradigna-SPIP-San Polo-Colorno-Sorbolo-San Secondo
Mostra su mappa
Affiliato
Secondo Tempo Srl
Via Venezia, 1 43100 Parma (PR)

2026 Tecnocasa Franchising S.p.A. - P. IVA 08365160152 - Via Monte Bianco 60/A 20089 Rozzano (MI). Ogni agenzia ha un proprio titolare ed è autonoma. Privacy policy | Policy utilizzo | Cookie policy